Om lägenheterna

Stor variation på lägenheternas utformning.

I föreningen finns en stor variation av lägenheter, från ettor på 41 kvm till sexor på över 152 kvm. Alla lägenheter har balkong eller terrass.
Föreningens totala bestånd uppgår till totalt 375 lägenheter.

Planritning över 5:an och de nybyggda lägenheterna saknas. Bilderna är scannade från skalenligt original, men viss förändring av skalan kan ha skett i processen.

1:or
30 st på 41-41,4 kvm. (Planritning)
14 st på 46-48 kvm (byggda 2001-2002)
6 st på 60 kvm (byggda 2004-2006)

2:or
40 st på 59-60 kvm. (Planritning)
52 st på 57,1 - 82,6 kvm (byggda 2004-2006)

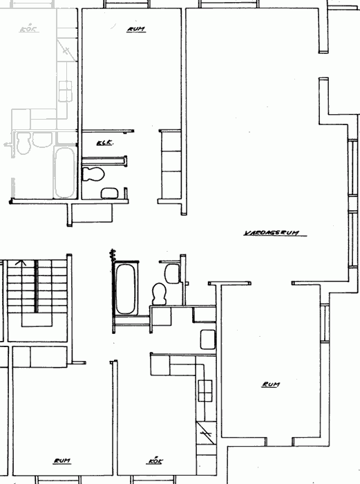
3:or
140 st på 88-88,5 kvm. (Planritning 1) (Planritning 2)
3 st på 97-99 kvm (byggda 2001-2002)
8 st på 88,3 - 88,4 kvm (byggda 2004-2006)

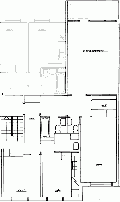
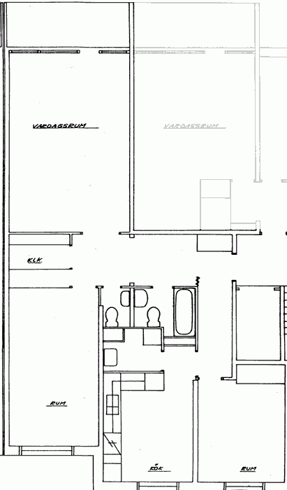
4:or
30 st på 112 kvm (Planritning)
10 st på 90,7 - 105,3 kvm (byggda 2004-2006)

5:or
6 st på 111-111,4 kvm 
6 st på 126,7 kvm (byggda 2004-2006)

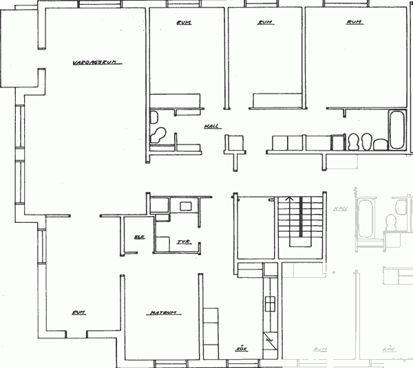
6:or
30 st på 152-152,8 kvm (Planritning)

Ladda ner alla (förutom 5:or och de nybyggda lägenheterna) planritningar i ett pdf-dokument.

 

Uppdaterat av Styrelsen BRF Bygatan 2025-11-27